Bardale Village (previously Silversands) Phase 1-8 Development Framework, Rezoning and Subdivision
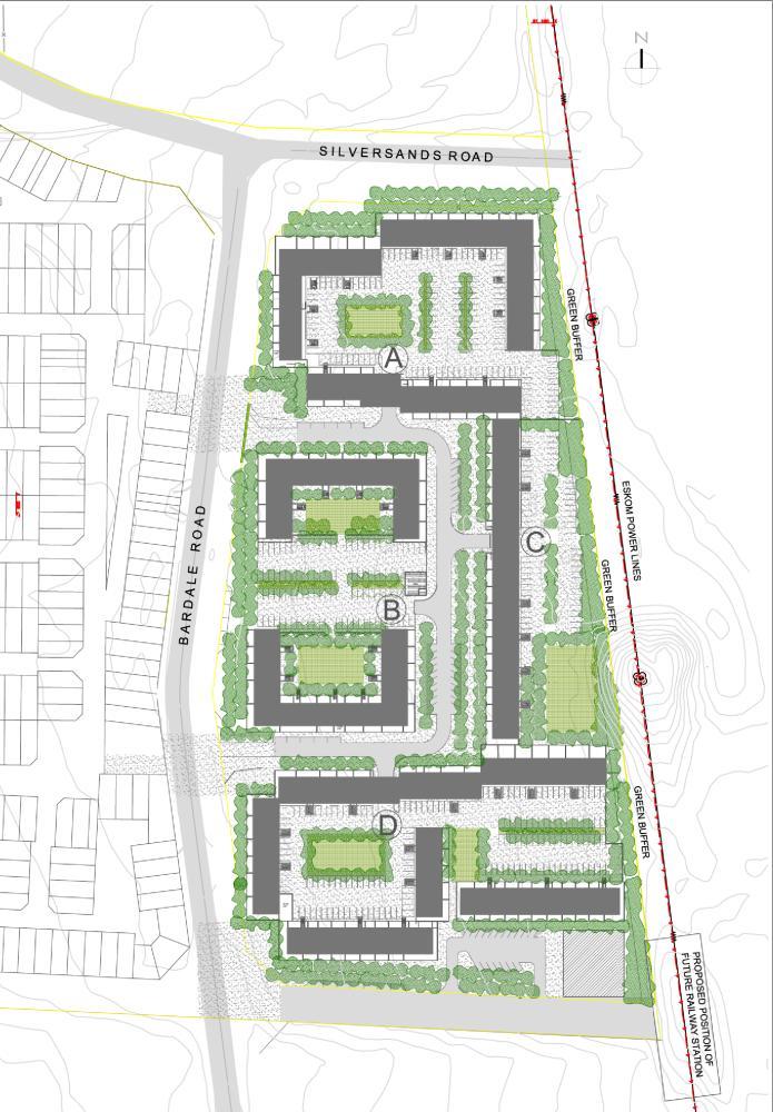
Phase 7 is a portion of the larger Bardale Village Development (previously called Silversands) comprising approximately 3500 affordable housing units and mixed use development and public spaces on an 85ha site close to the Blue Downs CBD. There are 8 Phases in total. With the exception of Phase 1, all phases have been the subject of subdivision applications undertaken by NM & Associates. Most phases have been a mix of ground related housing options, public open space and more recently sectional title units. Phase 7 measuring approximately 5.64 ha in extent is unique due to its location adjacent to the new proposed Blue Downs Station. In line with City of Cape Town policy, Phase 7 was set aside for higher density housing. It is expected to comprise 406 affordable sectional title residential units, 10 commercial units, a community facility and associated roads.
- Linear housing blocks create security of smaller development sites to avoid a gated village concept.
- The housing blocks provide surveillance over the public street network by incorporating outdoor living areas at ground level and balconies along the public street edges.
- The units are orientated north – south as far as possible to maximise on passive lighting and cooling opportunities.
- The housing block elevations are articulated so as to break the scale of the multi-storey development.
- The architecture is simple white wall architecture rhythmically punctured for fenestration to create interest with the opportunity for colour to define individuality within prescribed zones.
- Units range in size to accommodate different lifestyle and life-cycle needs.
- Landscaping along the periphery of the main public street interfaces provides visual and environmental relief, screening, and addresses the scale of the multi-storey blocks.
- Edges facing the busy future routes are designed with a view to accommodating commercial activities on the ground floor and allowing for a mix of land uses and potential work / live arrangements.
CLIENT
Integrated Housing Development Pty Ltd (previously Snailsnow Properties 10 Pty Ltd)
START YEAR
2012 - 2014
Area/Extent
Cape Town
Location
Western Cape
Sector
PARTNER
ARCHITECTURE
